Intelligent cha����� �������Ƴ������������ �������Ƴ������������ �������Ƴ����������� �������Ƴ�������rging system����� �������Ƴ������������ �������Ƴ������������ �������Ƴ����������� �������Ƴ�������
一、云端管控无人ETC


系统简介: 云端管控无人ETC,实现在����� �������Ƴ������������ �������Ƴ������������ �������Ƴ������������ �������Ƴ�������云端服务器集成一套多ETC车道控制����� �������Ƴ����������� �������Ƴ������������ �������Ƴ������������ �������Ƴ�������系统。该套系统可实现多车����� �������Ƴ����������� �������Ƴ������������ �������Ƴ������������ �������Ƴ�������道同时ETC过车收费,异常报警提示����� �������Ƴ������������ �������Ƴ������������ �������Ƴ����������� �������Ƴ�������等功能。由收费员����� �������Ƴ������ �������Ƴ������������ �������Ƴ������������ �������Ƴ������������ �������Ƴ�������������使用工作站、平����� �������Ƴ������������ �������Ƴ����������� �������Ƴ������������ �������Ƴ������板等设备来集中控制多车道,实����� �������Ƴ������������ �������Ƴ����������� �������Ƴ������������ �������Ƴ�������现了高速收费设施资源的最大化集����� �������Ƴ������������ �������Ƴ������������ �������Ƴ������������ �������Ƴ�������约利用。
主要功能:
● 多种终端适配:可使用台式机����� �������Ƴ����������� �������Ƴ������������ �������Ƴ������������ �������Ƴ�������、平板设备、收费厅内工控机等多种终端����� �������Ƴ������������ �������Ƴ������������ �������Ƴ����������� �������Ƴ�������进行车道控制。
● 多收费车道外设状态展示。
● 多收费车道视频展示。
● 多车道车辆通行状态展示:车辆通行信息,交易����� �������Ƴ������������ �������Ƴ������������ �������Ƴ����������� �������Ƴ�������信息,交易状态等信息以动����� ��������� �������Ƴ����������� �������Ƴ����������� �������Ƴ������������ �������Ƴ����������Ƴ�������态图形化展����� �������Ƴ������������ �������Ƴ������������ �������Ƴ������������ �������Ƴ�������示。
● 多车道异常报警及外设控制功能:车辆出现通行����� �������Ƴ����������� �������Ƴ������������ �������Ƴ����������� �������Ƴ������异常时,收费员可控制车道进行紧急放行。
● 车道过往通行交易查询功能����� �������Ƴ������������ �������Ƴ������������ �������Ƴ������������ �������Ƴ�������:车道收费人员可查看最近成功通过����� �������Ƴ������������ �������Ƴ����������� �������Ƴ������������ �������Ƴ�������的车辆交易信息。
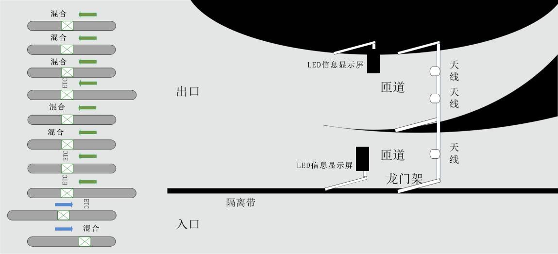
二、匝道预收费系统
在匝道设置ETC门架,安装天线、车牌识别设备等����� �������Ƴ������������ �������Ƴ����������� �������Ƴ������������ �������Ƴ�������提升车辆单次通行效率,实现ETC����� �������Ƴ������������ �������Ƴ����������� �������Ƴ������������ �������Ƴ�������预扣费,通过在匝道完成���������� �������Ƴ������������ �������Ƴ����������� �������Ƴ����������� �������Ƴ������� �������Ƴ�������大����� �������Ƴ������������ �������Ƴ������������ �������Ƴ������������ �������Ƴ�������部分OBU车辆的交易工作,只需经����� �������Ƴ����������� �������Ƴ������������ �������Ƴ������������ �������Ƴ������ETC或混合车道系统确认����� �������Ƴ������������ �������Ƴ������������ �������Ƴ������������ �������Ƴ�������后即可快速通行,缓解广场车道收费系统通����� �������Ƴ������������ �������Ƴ������������ �������Ƴ������������ �������Ƴ�������行压力,提高车辆交易成功率。ETC异常车辆提前����� �������Ƴ����������� �������Ƴ������������ �������Ƴ����������� �������Ƴ�������分流至混合车道通过在匝道自由流后方合适位����� �������Ƴ����������� �������Ƴ������������ �������Ƴ������������ �������Ƴ�������置架设LED信息提示屏,即可显示预交易����� �������Ƴ������������ �������Ƴ������������ �������Ƴ������������ �������Ƴ�������失败的车牌信息,并引导交易失败异常车辆通行混合车����� �������Ƴ������������ �������Ƴ������������ �������Ƴ������������ �������Ƴ�������道,实现异常车辆提前分流����� ����������� �������Ƴ������������ �������Ƴ������������ �������Ƴ����������� �������Ƴ�������Ƴ�������,提高收费广场整体通行效����� �������Ƴ������������ �������Ƴ������������ �������Ƴ������������ �������Ƴ�������率。

三、ETC车道系统
ETC车道收费软件,由C语����� �������Ƴ������������ �������Ƴ������������ �������Ƴ������������ �������Ƴ������言开发,通过识别车辆的OBU,进行扣费写入相关����� �������Ƴ����������� �������Ƴ������������ �������Ƴ������������ �������Ƴ�������信息。该收费软件能处理各种OBU及����� �������Ƴ������������ �������Ƴ������������ �������Ƴ������������ �������Ƴ�������卡内异常信息并在费额显示器上做出相应提示,也����� �������Ƴ������������ �������Ƴ������������ �������Ƴ������������ �������Ƴ�������能正确处理无OBU车辆和有OBU车辆的����� �������Ƴ����������� �������Ƴ������������ �������Ƴ������������ �������Ƴ�������混行情况。该款软件的各项相关指����� �������Ƴ����������� �������Ƴ������������ �������Ƴ������������ �������Ƴ�������标在交通运输部的排名中皆排在����� ����� �������Ƴ������������ �������Ƴ������������ �������Ƴ������������ �������Ƴ��������������Ƴ���������� �������Ƴ������������ �������Ƴ������������ �������Ƴ������������ �������Ƴ��������前列。另外满足取消省界站项����� �������Ƴ������������ �������Ƴ������������ �������Ƴ������������ �������Ƴ������目技术指标、费显优化项目技术指标、和辽����� �������Ƴ������������ �������Ƴ������������ �������Ƴ������������ �������Ƴ�������宁省的特定需求的基础上,尽����� �������Ƴ����������� �������Ƴ������������ �������Ƴ������������ �������Ƴ�������可能的优化了交易流程,使得E����� �������Ƴ������������ �������Ƴ������������ �������Ƴ������������ �������Ƴ�������TC交易快速便捷。

